
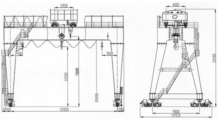
Crane Lift Crane, Crane Gantry Double Beam 30 Ton
Cuirtear craein gharbháin dhúbailte le hookanna i bhfeidhm lasmuigh den stóras nó ó thaobh an iarnróid chun oibreacha coibhneasta agus díluchtaithe a dhéanamh. Tá an cineál crann seo comhdhéanta de dhroichead, de chosaí tacaíochta, ó orgán taistil crann, tralaí le buiséad láidir, trealamh leictreach agus córas rialaithe. Mar dhearadh tromchúraim, is féidir é a úsáid go forleathan i ngach cineál réimse tionsclaíoch.
Craein ardaitheoir trom, crann gharbh bealach dúbailte 30 tonna
Cuirtear craein gharbháin dhúbailte le hookanna i bhfeidhm lasmuigh den stóras nó ó thaobh an iarnróid chun oibreacha coibhneasta agus díluchtaithe a dhéanamh. Tá an cineál crann seo comhdhéanta de dhroichead, de chosaí tacaíochta, ó orgán taistil crann, tralaí le buiséad láidir, trealamh leictreach agus córas rialaithe. Mar dhearadh tromchúraim, is féidir é a úsáid go forleathan i ngach cineál réimse tionsclaíoch.






English
Svenska
Bai Miaowen
Español
Latviešu
Kreyòl Ayisyen
Deutsch
Việt Nam
Indonesia
slovenščina
türkiye
اردو





